大幾千的南寧辦公室裝修設計圖紙,到底為啥這么貴?
喜歡設計施工分開做?總覺得全包型南寧辦公室裝修設計公司利潤太高?但你又知道外面完整的設計圖紙動輒大幾千嗎?你肯定想知道這錢都花在哪里了。今天就帶你探訪,這大幾千的南寧辦公室裝修設計圖紙背后的秘密!
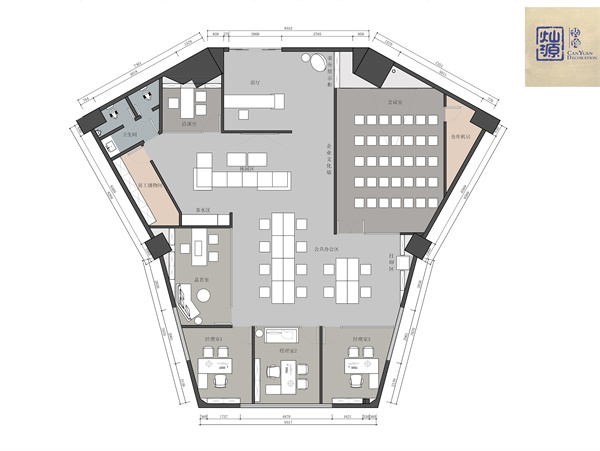
1.圖紙內容
一家正規、合格、有經驗的工裝裝修公司,比如燦源裝飾,出具的南寧辦公室裝修設計圖紙,應該至少包含以下幾個方面:平面布置圖,注明各功能區方位及面積,門窗位置及走向等整體布局方面要素,用來明確劃分空間及格局;頂面、地面及立面設計圖,對各部位細節位置進一步細化;

裝修效果圖,全方位展現南寧辦公室裝修設計竣工效果,以精致著稱,可看到裝修風格、軟裝搭配等直觀視覺感受。為了更好地完成設計,燦源裝飾選擇利用BIM創意技術,1:1還原空間建模,搭配草圖方案可視化,全景動態展現設計效果。

2.設計過程
一份準確把握客戶需求及喜好的南寧辦公室裝修設計圖紙,并不是拍拍腦袋憑空想象出來的。據統計,平均每份設計圖紙開工前,燦源裝飾的設計師,與客戶至少進行3次以上的1對1溝通環節,包括親自到現場走訪測量,觀察方位及周邊環境,融合行業背景、企業文化、公司性質、功能風格及特色科學環境布局原理,定位旺運方位,打造切實可行的個性化定制南寧辦公室裝修設計方案,還能助力企業運勢發展哦!

3.合格標準
大幾千的南寧辦公室裝修設計圖紙,又該如何判斷是否合格及其品質程度呢?燦源裝飾設計師建議,主要看:靈感創意是否新穎?設計風格是否符合裝修訴求?局部整體是否協調統一?功能區是否齊全完備、面積布局是否合理?尺寸是否標準?根據自己心中預期目標及多種客觀標準,進行衡量比對,判斷其是否合格。

南寧辦公室裝修設計,就找廣西燦源裝飾設計工程有限公司!營銷型辦公室裝修設計標準制定者,數百種設計風格任選,滿足各種裝修需求;深度融合VI+裝飾+環境計+品牌營銷等設計元素,搭配特色科學環境布局原理,打造專屬旺運南寧辦公室裝修設計方案,助力公司事業旺勢發展!
燦源裝飾老板辦公室裝修案例:老板辦公室設計裝修效果圖-案例-廣西燦源裝飾 (canyuanzs.com)
燦源裝飾中式辦公室裝修案例:中式辦公室裝修案例-效果圖-廣西燦源裝飾 (canyuanzs.com)
本文地址:http://m.bifanbei.cn/index-articleshow-id-3350-catid-36.html




